Gardenia-II-03

Habitacional Gardenia II

Residencial

 

Ubicación: Santo Domingo, República Dominicana.

Área de Construcción: 13,500m2

Tipología: Residencial Multifamiliar

Estado: 2018- En Construcción

Diseño: Fernando Salcedo Debes, Fernando Salcedo Hirujo, Mario Salcedo Hirujo

Colaboradores: Karen Macario, Carlos Cabrera

Construcción: Constructora Cid Ricart + Grupo INCI

 

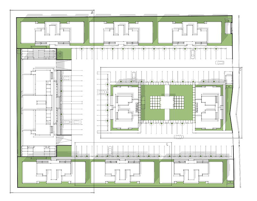
Ubicado en Santo Domingo, el proyecto habitacional de 92 apartamentos, consta de nueve bloques multifamiliares de cuatro niveles cada uno. El diseño espacial de cada apartamento tiene un enfoque biofílico y sostenible, gozando de abundante iluminación natural y considerada ventilación cruzada. El conjunto cuenta con amplias áreas verdes y recorridos que se convierten en un pulmón verde para el proyecto, el cual procura la interacción social y ser foco de relajación para sus usuarios.