Casa AH

Residencial

Ubicación: Arroyo Hondo, Santo Domingo, República Dominicana

Área de Construcción: 500 m²

Tipología: Residencia Privada

Estado: Diseño Esquemático

Diseño Arquitectura: A20 Arquitectos SRL

Equipo de Diseño: Luis Sabater Musa, Gabriela Ogando

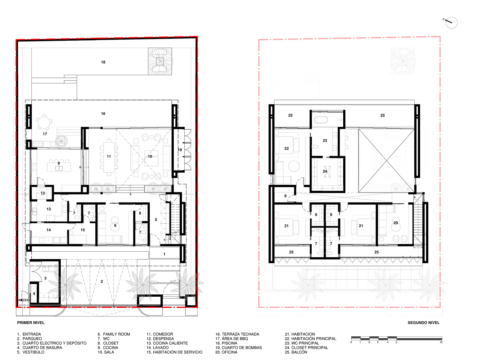
La Casa AH es un ensayo arquitectónico de la fusión entre una estética moderna industrial con un estilo de vida abierto tropical. El diseño se caracteriza por el uso de materiales como la piedra local, el metal, y la madera, que dan vida a una composición visualmente armoniosa y contemporánea, mientras que conserva elementos propios de la arquitectura tropical, como grandes vuelos y aperturas que procuran las sombras y circulación del viento.

La premisa fundamental de esta residencia fue la creación de distribuciones espaciales enfocadas al disfrute del paisaje en el patio posterior, el cual es el punto focal de todos los espacios. El mismo contempla zonas de estar en terraza, piscina, y paisaje.