Downtown Sands

Turístico

Ubicación: Downtown Punta Cana, República Dominicana

Área de Parcela: 4,023 m²

Área de Construcción: 8,100 m²

Tipología: Residencial / Turístico

Diseño Arquitectura: A20 Arquitectos — Luis Sabater Musa, Gabriela Ogando, Sindy Florian

Construcción: Casasuertes, SAS

Diseño estructural: Eisen — Eduardo Fernández

Diseño eléctrico: Smart Energy — Eddy Suriel

Diseño sanitario: VD&A — Magda Duarte

Renders: Cúbico 3D

Branding: Los Ángeles LTD

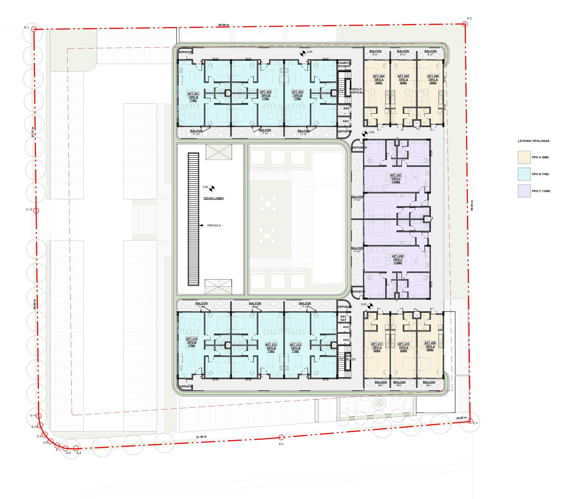
A20 y Casasuertes presentan su más reciente colaboración: Downtown Sands. Un proyecto residencial boutique ubicado en el corazón de Downtown Punta Cana, diseñado como un oasis tropical, donde arquitectura y paisaje se entrelazan para crear una experiencia de calma y bienestar, pensada para quienes buscan invertir o disfrutar de un espacio moderno y funcional.

Sobre un terreno de 4,023 m², el conjunto integra 60 apartamentos, amenidades comunes y locales comerciales, sumando más de 8,100 m² de construcción. El diseño gira en torno a un gran atrio central con piscina y jardines exuberantes, generando una experiencia biofílica que invita al descanso y la conexión. Sus líneas suaves, materiales cálidos y vuelos vegetados evocan una arquitectura tropical contemporánea, donde la sombra, el verdor y la textura definen la atmósfera de cada espacio.

El desarrollo equilibra diseño, rentabilidad y bienestar, respaldado por CONFOTUR, y estratégicamente ubicado a pocos minutos del aeropuerto, la playa y los principales atractivos de Punta Cana. Una propuesta arquitectónica que interpreta el espíritu tropical con precisión, sobriedad y sentido de permanencia.